SELL & BUY INFORMATION売買物件情報

№55554 横尾町1丁目の家

福山市横尾町1丁目18-16

横尾駅まで徒歩5分、スーパーまで約170mの利便性の高い立地
リフォーム提案いたします!

※残置物処理済み

INFORMATION

所在地福山市横尾町1丁目18-16
交通千田入口バス停 徒歩4分
価格800万円
学区千田小学校
築年月昭和54年10月
土地面積132.94㎡(40.21坪)
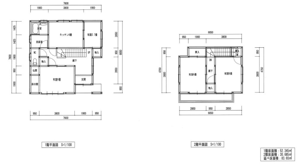
建物面積83.92㎡(25.38坪)
間取り3SDK
現況空家
建物構造木造2階建て
接道方向南側幅員5.2m公道に11m接道
駐車場駐車1台可
都市計画市街化
用途地域1種住
建ぺい率60%
容積率200%
設備電気・上下水道
引渡相談
取引態様仲介
こだわり※境界確定済

FLOOR PLAN

ACCESS MAP

売買物件のご相談は
0120-235-731
賃貸物件のご相談は
0120-81-0120
会社概要
お問い合わせ
売買物件のご相談は
0120-235-731
賃貸物件のご相談は
0120-81-0120