































| 所在地 | 岡山県笠岡市生江浜585-3 | ||||
| 交通 | 生江浜バス停より徒歩で5分 | ||||
| 価格 | 6,500万円 | ||||
| 学区 | |||||
| 築年月 | 38961 | ||||
| 土地面積 | 1,489㎡(450坪) | ||||
| 建物面積 | 534.23㎡( 161.60坪) | ||||
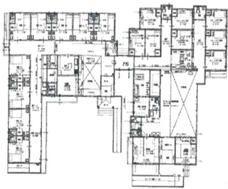
| 間取り | 全19室+共有スペース(キッチン、浴室など) | ||||
| 現況 | 空家 | ||||
| 建物構造 | 木造平屋建て | ||||
| 接道方向 | 南側約6m接道 | ||||
| 駐車場 | 駐車場敷地内あり | ||||
| 都市計画 | 市街化 | ||||
| 用途地域 | 準工業 | ||||
| 建ぺい率 | 60% | ||||
| 容積率 | 200% | ||||
| 設備 | 電気 上下水道 プロパンガス | ||||
| 引渡 | 相談 | ||||
| 取引態様 | 仲介 | ||||
| こだわり | 私道負担なし |
