SELL & BUY INFORMATION売買物件情報

INFORMATION

所在地福山市坪生町6丁目23番17‐6号
交通坪生峠バス停バス停 徒歩2分
価格2,300万円
学区坪生小学校(1900m)・東朋中学校(2300m)
築年月1992年8月
土地面積474.49㎡(143.53坪)
建物面積214.08㎡(64.75坪)
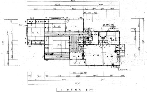
間取り8K
現況空家
建物構造木造2階建て
接道方向南側幅員6m私道23.9m接道
駐車場駐車場有
都市計画市街化
用途地域1種住
建ぺい率60%
容積率200%
設備
引渡即時
取引態様仲介
こだわり

FLOOR PLAN

ACCESS MAP

売買物件のご相談は
0120-235-731
賃貸物件のご相談は
0120-81-0120
会社概要
お問い合わせ
売買物件のご相談は
0120-235-731
賃貸物件のご相談は
0120-81-0120